Tek Katlı Prefabrik Ev 82 m²

  • Ürün Açıklaması
  • Fiyata Dahil Olanlar
  • Fiyata Dahil Olmayanlar
  • Standart Teknik Özellikler

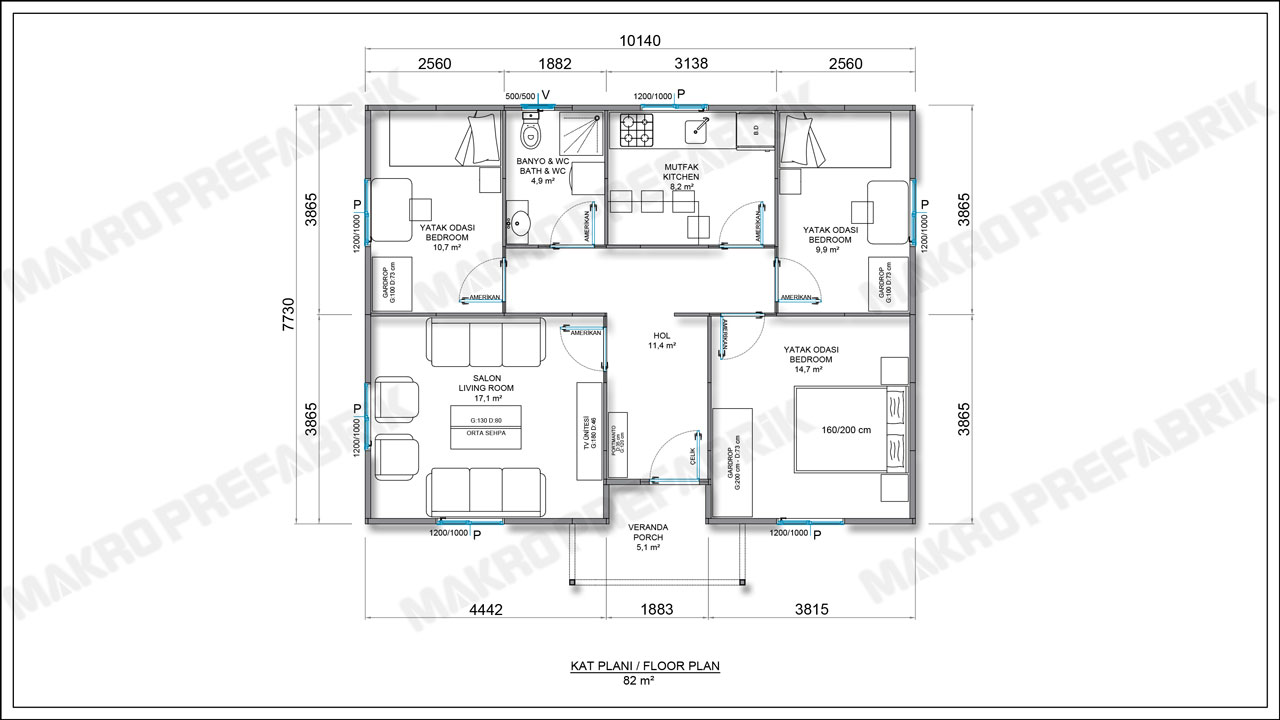
Bir çok parçanın bir araya gelmesiyle üretilen bu modelde bizi oldukça çeken birşey var. Bu çeken şey kesinlikle simetrik tasarımı olabilir. Simetrik tasarımı sayesinde oldukça kullanışlı dizayn edilmiştir. 

Bu simetrik tasarımının bir başka avantajı ise 3+1 toplamda 81 m2 geniş ve ferah bir yaşam alanı sunuyor olmasıdır. Verandasını iki yana uzatarak daha büyük ve geniş bir veranda elde edebilirsiniz. En güzel bölümü kesinlikle 12 m2 alanı ile antredir. Bu alana girişte çok güzel, geniş bir portmanto konumlandırabilirsiniz. 

Diğer yapılarla karşılaştırdığımızda prefabrik ev fiyatları maliyetleri oldukça düşüren yapısı ile ön plana çıkmaktadır. Bunun yanı sıra yapılan izolasyon çalışmaları sayesinde tek katlı prefabrik evinizin ısıtma maliyetlerinden tasarruf etmenizi sağlar.

Bunun dışında Covid-19 pandemisinin ilk vakaları ülkemizde görülmeye başladıktan sonra beyaz yaka çalışanların neredeyse hepsi evden çalışma sistemine geçtiler. Bu dönemde uygulanan yasaklardan ötürü tüm insanlığın sosyalleşme oranı neredeyse sıfıra düştü. Bugün bu pandemi halen devam etmektedir. Fakat insanlar sosyalleşme sorununa çözüm olarak yazlık arsalarına kurdukları bu prefabrik evde buldular. Nasıl mı? Şöyle ki, prefabrik ev modelinin hızlı üretiliyor olması sayesinde hızla konaklayabilecekleri bir mekan inşa ettirdiler. Bu sayede kalabalık olmayan alanlarda çalışırken hem de dışarıya çıkabilme özgürlüklerinden dolayı sosyalleşme sorunlarını çözdüler. Bunun yanı sıra hiç tatmadıkları sebze meyve yetiştirmek gibi deneyimleri de tatma fırsatı da buldular. 

  • Kurulum: Müşterinin talebine bağlı olarak montaj ekibi sağlanabilir. Montaj maliyeti projeye göre değişiklik göstermektedir.
  • Tüm bina elemanları ( Duvar panelleri ve birleşim elemanları ) montajı
  • Dış kapı ( Çelik Kapı ) 
  • İç kapı (Amerikan panel)
  • KOMPEN marka PVC pencereler
  • Tüm pencerelerin ısıcam dahil takılması
  • Bina içi elektrik tesısatı malzeme ve uygulamaları (prizler , anahtarlar , sigortalar , aydınlatma
    armatürleri )
  • Projede varsa vitrifiye malzemesinin temin edilmesi (klozet, lavabo, muslukları ) montajı hariç
  • Sıhhı tesisatı malzeme ve uygulamaları ( pis su , temiz su borulama işlemi )
  • Tüm tavan kaplaması, tavan yalıtımı, çatı kaplaması
  • İç & dış tavan, metal aksam boya ve astarlama ve silikonlama işlemi
  • Malzemelerin alıcı tarafından gönderilen araçlara yüklenmesi, satıcıya aittir
  • Zemin betonu ve her türlü hafriyat işleri
  • Zemin ve duvar kaplama işleri ( şap,seramik,fayans,halı,vs )
  • Binanın kurulması için gerekli izinler
  • Nakliye,nakliye sigortası ve gerekli ise vinç,iskele temini
  • Bina harici dış bağlantılar (Elektrik,topraklama hattı pis su ve temiz su vs. )
  • Isıtma ve soğutma tesisatları ( kalorifer,klima vs. )
  • Mutfak tezgahı - alt üst dolapları ve banyo dolapları
  • Telefon,tv,bilgisayar,UPS,data tesisat ve armatürleri
  • Montaj esnasında kullanılacak elektrik temini
  • İstanbul dışı montajlarda ekibin konaklama ve yemek bedeli
  • Malzemenin montaj yerinde hırsızlara karşı korunması
  • Duş teknesi
  • Duvar Kalınlıkları Dış: 100 mm / İÇ : 60 mm H=2.50mt.
  • Çatı Kaplaması: Boyalı Galveniz Trapez: 
  • Kapılar / Pencereler Dış Kapı: Çelik / İç Kapı:Amerikan/PVC ( Beyaz )
  • İç Dış Boya: PERMOLİT Marka Boya
  • Elektrik Armatürleri: VİKO Marka Kardelen Serisi
  • Vitrifiye Armatürleri: AYVİT Seramik
Teknik Özellikler
  • Bina Yüksekliği 250 cm
  • Dış Duvarlar 10 cm
  • İç Duvar 6 cm - 10 cm (Opsiyonel )
  • Dış Kapı Çelik Kapı
  • İç Kapı Amerikan Kapı
  • Balkon Kapısı Beyaz Renk PVC Kapı
  • Pencereler Beyaz Renk PVC Pencere
  • Çatı Kaplaması Boyalı Galvaniz Sac, Metal Kiremit(Opsiyonel), Shingle (Opsiyonel )
  • Elektrik Tesisatı Sıva Altı
  • Sıhhi Tesisat Sıva Altı
  • Dış Cephe Boyası Silikonlu Dış Cephe Boyası
  • İç Cephe Boyası Plastik İç Cephe Boyası
Bugün sizi arayalım!
Daha verimli çalışmalar yapabilmemiz için; Yapmayı düşündüğünüz projeleriniz varsa lütfen detaylarıyla birlikte aşağıdaki formdan veya info@makroprefabrik.com adresinden bize gönderin.
Makro
İletişim Formu
Bilgileriniz girin
Tek Katlı Prefabrik Ev 82 m²