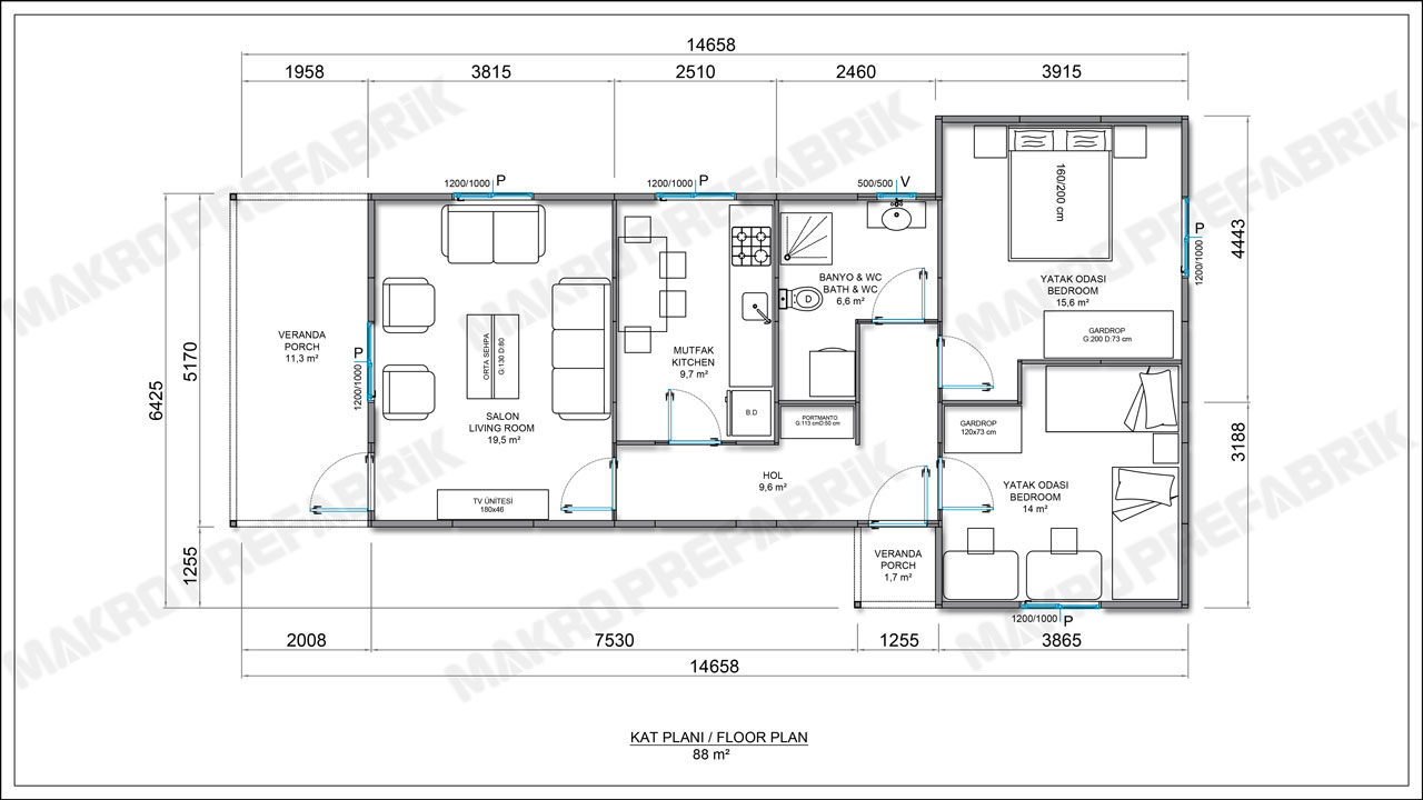
Prefabrik Ev Fiyatı 88 m²

88 m²
Fiyat
717.500TL
Kat Sayısı
1
Oda Sayısı
2+1
  • Fiyata Dahil Olanlar
  • Fiyata Dahil Olmayanlar
  • Kurulum: Müşterinin talebine bağlı olarak montaj ekibi sağlanabilir. Montaj maliyeti projeye göre değişiklik göstermektedir.
  • Tüm bina elemanları ( Duvar panelleri ve birleşim elemanları ) montajı
  • Dış kapı ( Çelik Kapı ) 
  • İç kapı (Amerikan panel)
  • KOMPEN marka PVC pencereler
  • Tüm pencerelerin ısıcam dahil takılması
  • Bina içi elektrik tesısatı malzeme ve uygulamaları (prizler , anahtarlar , sigortalar , aydınlatma
    armatürleri )
  • Projede varsa vitrifiye malzemesinin temin edilmesi (klozet, lavabo, muslukları ) montajı hariç
  • Sıhhı tesisatı malzeme ve uygulamaları ( pis su , temiz su borulama işlemi )
  • Tüm tavan kaplaması, tavan yalıtımı, çatı kaplaması
  • İç & dış tavan, metal aksam boya ve astarlama ve silikonlama işlemi
  • Malzemelerin alıcı tarafından gönderilen araçlara yüklenmesi, satıcıya aittir
  • Zemin betonu ve her türlü hafriyat işleri
  • Zemin ve duvar kaplama işleri ( şap,seramik,fayans,halı,vs )
  • Binanın kurulması için gerekli izinler
  • Nakliye,nakliye sigortası ve gerekli ise vinç,iskele temini
  • Bina harici dış bağlantılar (Elektrik,topraklama hattı pis su ve temiz su vs. )
  • Isıtma ve soğutma tesisatları ( kalorifer,klima vs. )
  • Mutfak tezgahı - alt üst dolapları ve banyo dolapları
  • Telefon,tv,bilgisayar,UPS,data tesisat ve armatürleri
  • Montaj esnasında kullanılacak elektrik temini
  • İstanbul dışı montajlarda ekibin konaklama ve yemek bedeli
  • Malzemenin montaj yerinde hırsızlara karşı korunması
  • Duş teknesi
Teknik Özellikler
  • Bina Yüksekliği 250 cm
  • Dış Duvarlar 10 cm
  • İç Duvar 6 cm - 10 cm (Opsiyonel )
  • Dış Kapı Çelik Kapı
  • İç Kapı Amerikan Kapı
  • Balkon Kapısı Beyaz Renk PVC Kapı
  • Pencereler Beyaz Renk PVC Pencere
  • Çatı Kaplaması Boyalı Galvaniz Sac, Metal Kiremit(Opsiyonel), Shingle (Opsiyonel )
  • Elektrik Tesisatı Sıva Altı
  • Sıhhi Tesisat Sıva Altı
  • Dış Cephe Boyası Silikonlu Dış Cephe Boyası
  • İç Cephe Boyası Plastik İç Cephe Boyası
Bugün sizi arayalım!
Daha verimli çalışmalar yapabilmemiz için; Yapmayı düşündüğünüz projeleriniz varsa lütfen detaylarıyla birlikte aşağıdaki formdan veya info@makroprefabrik.com adresinden bize gönderin.
Makro
İletişim Formu
Bilgileriniz girin
Diğer Ürünler
Prefabrik Ev Fiyatı 88 m²