Prefabrik Ev Fiyatı 85 m²

85 m²
Fiyat
616.200TL
Kat Sayısı
1
Oda Sayısı
2+1
  • Ürün Açıklaması
  • Fiyata Dahil Olanlar
  • Fiyata Dahil Olmayanlar

Prefabrik evler, inşaat teknolojilerinin çok gelişmiş olduğunun bir göstergesidir. Böylece maliyetlerin düşürülmesi, yapısı ve fiyatı dahil olmak üzere pek çok malzeme ile malzeme maliyetlerinden tasarruf ettirilebilmektedir. 

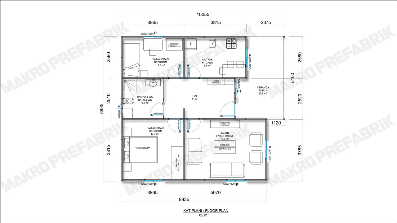
Bu açıdan bakıldığında 85 m2 prefabrik ev fiyatları  da oldukça uygundur. Bu model büyük veranda isteyen kullanıcılar için oldukça uygundur. Öyle ki bu prefabrik ev modelimize girişler 14 m2 büyüklüğündeki verandaya ulaşım ile yapılmaktadır. Büyük bir verandaya sahip olma yanı sıra modelin ön cephesine tam üç adet büyük pencere konumlandırılmıştır. Bu sayede ön oyunda oyun oynayan çocuklarınızı rahat bir şekilde izleyebilirsiniz. Ayrıca verandadaki akraba birleşmelerini bir hayal edin.

Bunlara ek olarak girişte sizlere 11 m2 antre karşılamaktadır. Bu bölümü dileyen kullanıcılar portmanto konumlandırabilirler. Girişte tam karşınızda 6 m2 banyo kalıyor. Sağ tarafınızda ise 10 m2 çocuk yatak odası ile 10 m2 büyüklüğündeki mutfak kalır. Mutfakta yapılan lezzetli yemekler şüphesiz ki ev ahalisini en iyi şekilde kullanır. Buraya koyacağınız bir masa ile yemeklerinizi daha eğlenceli hale getirebilirsiniz.

85 m2 prefabrik ev modelimizin sol tarafında ise 19 m2 salon ve 15 m2 ebeveyn yatak odası bulunmaktadır. Salon tarafında bulunan iki pencere ile bu mekan oldukça aydınlatılmıştır.

  • Kurulum: Müşterinin talebine bağlı olarak montaj ekibi sağlanabilir. Montaj maliyeti projeye göre değişiklik göstermektedir.
  • Tüm bina elemanları ( Duvar panelleri ve birleşim elemanları ) montajı
  • Dış kapı ( Çelik Kapı ) 
  • İç kapı (Amerikan panel)
  • KOMPEN marka PVC pencereler
  • Tüm pencerelerin ısıcam dahil takılması
  • Bina içi elektrik tesısatı malzeme ve uygulamaları (prizler , anahtarlar , sigortalar , aydınlatma
    armatürleri )
  • Projede varsa vitrifiye malzemesinin temin edilmesi (klozet, lavabo, muslukları ) montajı hariç
  • Sıhhı tesisatı malzeme ve uygulamaları ( pis su , temiz su borulama işlemi )
  • Tüm tavan kaplaması, tavan yalıtımı, çatı kaplaması
  • İç & dış tavan, metal aksam boya ve astarlama ve silikonlama işlemi
  • Malzemelerin alıcı tarafından gönderilen araçlara yüklenmesi, satıcıya aittir
  • Zemin betonu ve her türlü hafriyat işleri
  • Zemin ve duvar kaplama işleri ( şap,seramik,fayans,halı,vs )
  • Binanın kurulması için gerekli izinler
  • Nakliye,nakliye sigortası ve gerekli ise vinç,iskele temini
  • Bina harici dış bağlantılar (Elektrik,topraklama hattı pis su ve temiz su vs. )
  • Isıtma ve soğutma tesisatları ( kalorifer,klima vs. )
  • Mutfak tezgahı - alt üst dolapları ve banyo dolapları
  • Telefon,tv,bilgisayar,UPS,data tesisat ve armatürleri
  • Montaj esnasında kullanılacak elektrik temini
  • İstanbul dışı montajlarda ekibin konaklama ve yemek bedeli
  • Malzemenin montaj yerinde hırsızlara karşı korunması
  • Duş teknesi
Teknik Özellikler
  • Bina Yüksekliği 250 cm
  • Dış Duvarlar 10 cm
  • İç Duvar 6 cm - 10 cm (Opsiyonel )
  • Dış Kapı Çelik Kapı
  • İç Kapı Amerikan Kapı
  • Balkon Kapısı Beyaz Renk PVC Kapı
  • Pencereler Beyaz Renk PVC Pencere
  • Çatı Kaplaması Boyalı Galvaniz Sac, Metal Kiremit(Opsiyonel), Shingle (Opsiyonel )
  • Elektrik Tesisatı Sıva Altı
  • Sıhhi Tesisat Sıva Altı
  • Dış Cephe Boyası Silikonlu Dış Cephe Boyası
  • İç Cephe Boyası Plastik İç Cephe Boyası
Bugün sizi arayalım!
Daha verimli çalışmalar yapabilmemiz için; Yapmayı düşündüğünüz projeleriniz varsa lütfen detaylarıyla birlikte aşağıdaki formdan veya info@makroprefabrik.com adresinden bize gönderin.
Makro
İletişim Formu
Bilgileriniz girin
Diğer Ürünler
Prefabrik Ev Fiyatı 85 m²