Prefabrik Ev Fiyatı 74 m²

74 m²
Fiyat
479.300 TL
Kat Sayısı
1
Oda Sayısı
2+1
  • Ürün Açıklaması
  • Fiyata Dahil Olanlar
  • Fiyata Dahil Olmayanlar

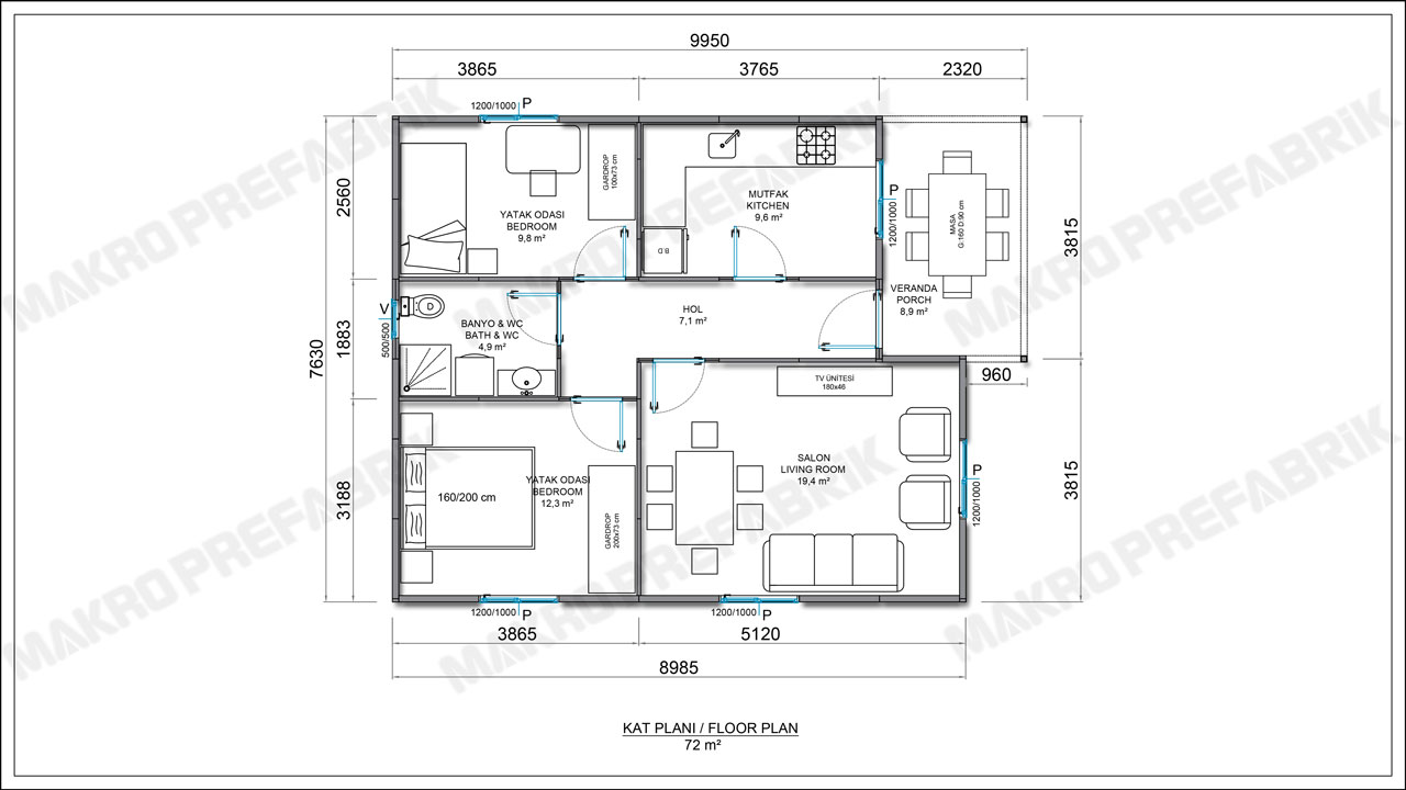
Bu modelin bizi heyecanlandıran bir özelliği var. Bu prefabrik evin iki girişinin olması özelliğidir. Bu iki girişten birisi verandadan salona, ​​diğeri ise verandadan antreye bağlanmaktadır. Ayrıca bu çift girişin bir avantajı daha var. Verandayı uzatırsanız, iki girişi birbirine bağlayan bağlantı, daha kullanışlı ve geniş bir veranda yaşam alanı elde edilmeye karşı dayanıklıdır. 

2+1 diyebileceğimiz bu prefabrik evin oldukça kullanışlı kullanım sunması için tasarlanmıştır. 7 m² geniş antresine konumlandıracağınız portmantoyu bir hayal edin. Bunun dışında iki pencere bulunan 12 m² mutfakta oynarken bahçede oynayan çocuklarınızı izleyebilir, bunun yanı sıra yaptığınız lezzetli yemeklerin kokusuyla onları cezbedebilir ve ev ahalisini görüntüleyebilirsiniz.

Prefabrik evlerde diğer yapılarda Kullanılan Yalıtım yöntemleri kullanılmaktadır. Bu sayede terapiyle uygulanan ısıtma yöntemleri daha etkili çalışabilecektir.
İzolasyona katkı bulunan bir başka malzeme PVC'nin yapısı, içerideki ısıyı sunar, dışarıdaki soğuğu da içeriye almaz. Bu da faturanızda bir tasarrufla sonuçlanmış olur. 

Bir diğer konu ise ilerlemektedir. Prefabrik evlerin çoğu maliyeti ortadan kaldırılmaktadır. Bunun yanı sıra sıra fiyatı dahil olan çoğu malzeme sayesinde inşaat bütçenizden tasarruf etmiş olursunuz. Üretim süreci oldukça hızlı inşaatın gelişmesinden kaynaklanan kira maliyetlerini de en aza indirmiş olursunuz.

Siz geniş verandanızda çayınızı yudumlarken, çocuklarınız bahçede koşacaktır.

  • Kurulum: Müşterinin talebine bağlı olarak montaj ekibi sağlanabilir. Montaj maliyeti projeye göre değişiklik göstermektedir.
  • Tüm bina elemanları ( Duvar panelleri ve birleşim elemanları ) montajı
  • Dış kapı ( Çelik Kapı ) 
  • İç kapı (Amerikan panel)
  • KOMPEN marka PVC pencereler
  • Tüm pencerelerin ısıcam dahil takılması
  • Bina içi elektrik tesısatı malzeme ve uygulamaları (prizler , anahtarlar , sigortalar , aydınlatma
    armatürleri )
  • Projede varsa vitrifiye malzemesinin temin edilmesi (klozet, lavabo, muslukları ) montajı hariç
  • Sıhhı tesisatı malzeme ve uygulamaları ( pis su , temiz su borulama işlemi )
  • Tüm tavan kaplaması, tavan yalıtımı, çatı kaplaması
  • İç & dış tavan, metal aksam boya ve astarlama ve silikonlama işlemi
  • Malzemelerin alıcı tarafından gönderilen araçlara yüklenmesi, satıcıya aittir
  • Zemin betonu ve her türlü hafriyat işleri
  • Zemin ve duvar kaplama işleri ( şap,seramik,fayans,halı,vs )
  • Binanın kurulması için gerekli izinler
  • Nakliye,nakliye sigortası ve gerekli ise vinç,iskele temini
  • Bina harici dış bağlantılar (Elektrik,topraklama hattı pis su ve temiz su vs. )
  • Isıtma ve soğutma tesisatları ( kalorifer,klima vs. )
  • Mutfak tezgahı - alt üst dolapları ve banyo dolapları
  • Telefon,tv,bilgisayar,UPS,data tesisat ve armatürleri
  • Montaj esnasında kullanılacak elektrik temini
  • İstanbul dışı montajlarda ekibin konaklama ve yemek bedeli
  • Malzemenin montaj yerinde hırsızlara karşı korunması
  • Duş teknesi
Teknik Özellikler
  • Bina Yüksekliği 250 cm
  • Dış Duvarlar 10 cm
  • İç Duvar 6 cm - 10 cm (Opsiyonel )
  • Dış Kapı Çelik Kapı
  • İç Kapı Amerikan Kapı
  • Balkon Kapısı Beyaz Renk PVC Kapı
  • Pencereler Beyaz Renk PVC Pencere
  • Çatı Kaplaması Boyalı Galvaniz Sac, Metal Kiremit(Opsiyonel), Shingle (Opsiyonel )
  • Elektrik Tesisatı Sıva Altı
  • Sıhhi Tesisat Sıva Altı
  • Dış Cephe Boyası Silikonlu Dış Cephe Boyası
  • İç Cephe Boyası Plastik İç Cephe Boyası
Bugün sizi arayalım!
Daha verimli çalışmalar yapabilmemiz için; Yapmayı düşündüğünüz projeleriniz varsa lütfen detaylarıyla birlikte aşağıdaki formdan veya info@makroprefabrik.com adresinden bize gönderin.
Makro
İletişim Formu
Bilgileriniz girin
Diğer Ürünler
Prefabrik Ev Fiyatı 74 m²