Prefabrik Ev Fiyatı 95 m²

95 m²
Fiyat
768.500TL
Kat Sayısı
1
Oda Sayısı
3+1
  • Ürün Açıklaması
  • Fiyata Dahil Olanlar
  • Fiyata Dahil Olmayanlar

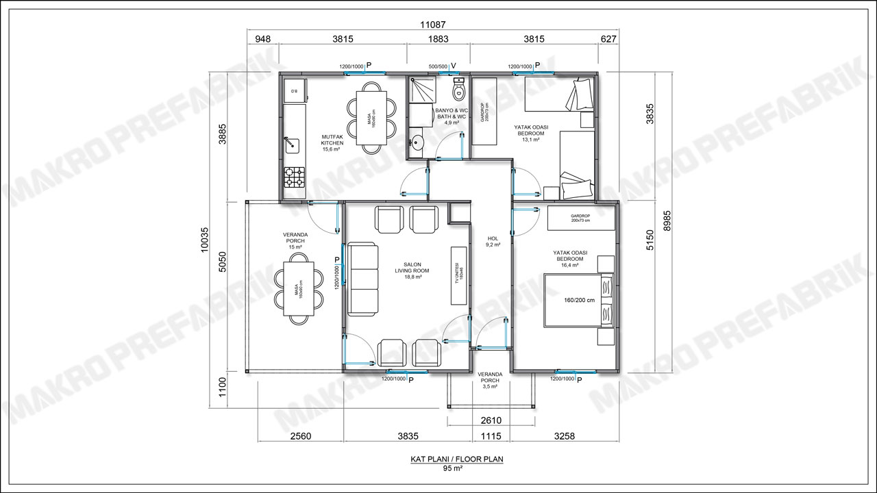
Prefabrik evler, son dönemlerde, gerek mimari tasarımlardan oluşan ekonomik fiyatlarından dolayı oldukça popüler hale gelmişlerdir. Toplam 95 m2 yaşam alanı sunan bu modelin iç mimarisi oldukça güzel bir ortama sahiptir.

95 m2 prefabrik ev modelimize iki noktadan giriş ve çıkış yapılabilmektedir. Birinci giriş, geniş 9 m2 büyüklüğüne sahip veranda taşımacılığı ile 19 m2 büyüklüğündeki salona yapılmaktadır. İkinci giriş ise evin sağ cephesindeki 2 m2 veranda ile 5 m2 büyüklüğündeki bölüme giriş yapılmaktadır. Dileyen kullanıcılar bu bölümleri portmanto gibi mobilyalarla konumlandırabilirler. Bu avantajlar ile dolu prefabrik ev modeline sahip olabilirsiniz.

Girişten sonra 10 m2 büyüklüğündeki bir mutfak geliyor. Mutfak ve salonun sahibi olduğu büyük parçalar sayesinde bahçenizde çalışan oyuncu çocuklarınızı izleyebilirsiniz. Bu modelde ayrıca L şeklinde 6 m2 büyüklüğünde bir antre bulunmaktadır. Birisi 15 m2 genişliğinde ebeveyn yatak odası ve 11 ve 10 m2 genişliğinde iki tane çocuk yatak odası ile toplam üç adet yatak odası bulunmaktadır. 

Bu prefabrik ev modelimizin her odasında en az bir pencere bulunmaktadır. Bu sayede evin her odası gündüzleri doğal ışık ile aydınlatılmış olur. Bunların yanı sıra bütün prefabrik ev modellerimiz gibi bu model depreme ve diğer doğal afetlere dayanıklı bir biçimde üretilmektedir.

  • Kurulum: Müşterinin talebine bağlı olarak montaj ekibi sağlanabilir. Montaj maliyeti projeye göre değişiklik göstermektedir.
  • Tüm bina elemanları ( Duvar panelleri ve birleşim elemanları ) montajı
  • Dış kapı ( Çelik Kapı ) 
  • İç kapı (Amerikan panel)
  • KOMPEN marka PVC pencereler
  • Tüm pencerelerin ısıcam dahil takılması
  • Bina içi elektrik tesısatı malzeme ve uygulamaları (prizler , anahtarlar , sigortalar , aydınlatma
    armatürleri )
  • Projede varsa vitrifiye malzemesinin temin edilmesi (klozet, lavabo, muslukları ) montajı hariç
  • Sıhhı tesisatı malzeme ve uygulamaları ( pis su , temiz su borulama işlemi )
  • Tüm tavan kaplaması, tavan yalıtımı, çatı kaplaması
  • İç & dış tavan, metal aksam boya ve astarlama ve silikonlama işlemi
  • Malzemelerin alıcı tarafından gönderilen araçlara yüklenmesi, satıcıya aittir
  • Zemin betonu ve her türlü hafriyat işleri
  • Zemin ve duvar kaplama işleri ( şap,seramik,fayans,halı,vs )
  • Binanın kurulması için gerekli izinler
  • Nakliye,nakliye sigortası ve gerekli ise vinç,iskele temini
  • Bina harici dış bağlantılar (Elektrik,topraklama hattı pis su ve temiz su vs. )
  • Isıtma ve soğutma tesisatları ( kalorifer,klima vs. )
  • Mutfak tezgahı - alt üst dolapları ve banyo dolapları
  • Telefon,tv,bilgisayar,UPS,data tesisat ve armatürleri
  • Montaj esnasında kullanılacak elektrik temini
  • İstanbul dışı montajlarda ekibin konaklama ve yemek bedeli
  • Malzemenin montaj yerinde hırsızlara karşı korunması
  • Duş teknesi
Teknik Özellikler
  • Bina Yüksekliği 250 cm
  • Dış Duvarlar 10 cm
  • İç Duvar 6 cm - 10 cm (Opsiyonel )
  • Dış Kapı Çelik Kapı
  • İç Kapı Amerikan Kapı
  • Balkon Kapısı Beyaz Renk PVC Kapı
  • Pencereler Beyaz Renk PVC Pencere
  • Çatı Kaplaması Boyalı Galvaniz Sac, Metal Kiremit(Opsiyonel), Shingle (Opsiyonel )
  • Elektrik Tesisatı Sıva Altı
  • Sıhhi Tesisat Sıva Altı
  • Dış Cephe Boyası Silikonlu Dış Cephe Boyası
  • İç Cephe Boyası Plastik İç Cephe Boyası
Bugün sizi arayalım!
Daha verimli çalışmalar yapabilmemiz için; Yapmayı düşündüğünüz projeleriniz varsa lütfen detaylarıyla birlikte aşağıdaki formdan veya info@makroprefabrik.com adresinden bize gönderin.
Makro
İletişim Formu
Bilgileriniz girin
Diğer Ürünler
Prefabrik Ev Fiyatı 95 m²